Piattaforme di trasporto verticale del personale a Bari
Le piattaforme di trasporto e montacarichi sono macchine idonee per il trasporto verticale del personale e dei materiali in un cantiere. Questa tipologia di attrezzature è dotata di un sistema di sollevamento efficiente e sicuro, ma è anche una valida alternativa alle gru grazie a cui è possibile velocizzare le procedure e ridurre i costi di cantiere.
Contatta la sede
Col supporto di Go Up Montaggi non solo potrai usufruire del servizio di noleggio montacarichi a Bari e in tutto il Sud Italia, ma anche di tecnici specializzati nel montaggio e smontaggio degli stessi.
Montacarichi lift up 500 (220v e 380v)
• Dimensione cesta: Monofase: 1150 mm x 1500 mm x 1120 mm - Trifase: 1150 mm x 1100 mm x 1120 mm
• Dimensioni dell'unità di base: 1985 mm x 1955 mm (monofase e trifase)
• Peso traliccio: 41 kg (monofase e trifase)
• Velocità di sollevamento: 12 m/min (monofase e trifase)
• Massima altezza ancorata: 60 mt (monofase e trifase)
• Tensione di alimentazione: Monofase: 230/50 Hz - Trifase: 400/50 Hz
• Interruttore protezione linea: 16 A (monofase e trifase)
• Potenza servizio continuo: 1x2,2 kW (monofase e trifase)
Ascensore con piattaforma di carico PT 900m
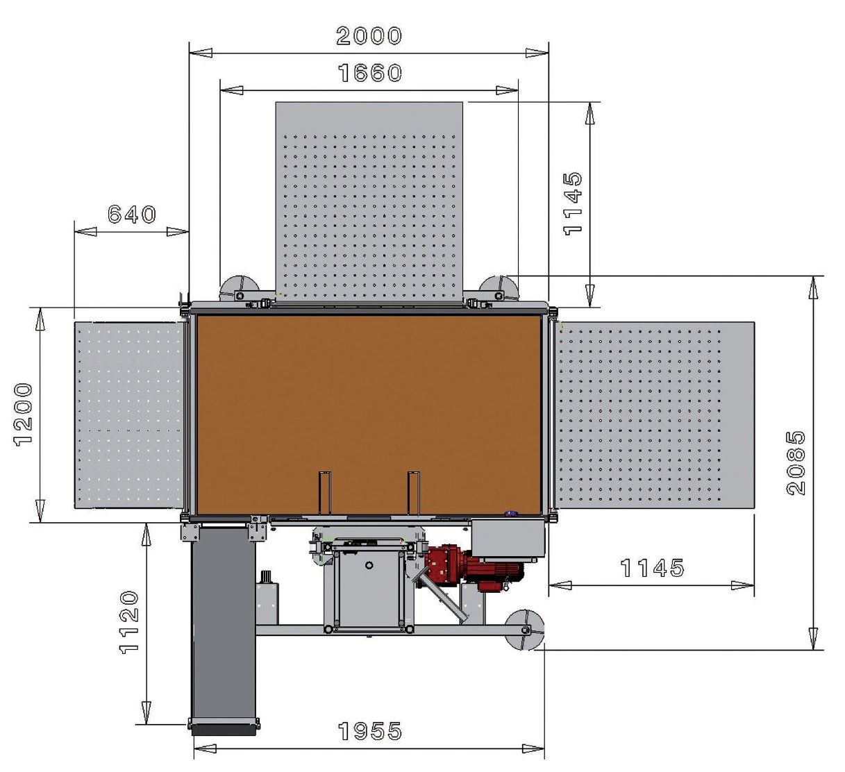
• Dimensione cesta: 1500x1200x1120 mm
• Portata massima: 900 kg
• Peso traliccio: 41 kg
• Velocità di sollevamento: 8 m/min
• Massima altezza ancorata: 60 mt
• Potenza motori: 2x1.1 kw
• Tensione/frequenza: 220V/50Hz
Montacarichi da cantiere Electroelsa 1000 kg mini
• Dimensione cesta: Monofase: 1150 mm x 1500 mm x 1120 mm - Trifase: 1150 mm x 1100 mm x 1120 mm
• Dimensioni dell'unità di base: 1985 mm x 1955 mm (monofase e trifase)
• Peso traliccio: 41 kg (monofase e trifase)
• Velocità di sollevamento: 12 m/min (monofase e trifase)
• Massima altezza ancorata: 60 mt (monofase e trifase)
• Tensione di alimentazione: Monofase: 230/50 Hz - Trifase: 400/50 Hz
• Interruttore protezione linea: 16 A (monofase e trifase)
• Potenza servizio continuo: 1x2,2 kW (monofase e trifase)
Ascensore con piattaforma di carico PT 1200
Cesta completamente zincata, apertura trilaterale, porte reversibili, radiocomando.



















